SOLD VIA CLIFTON & CO
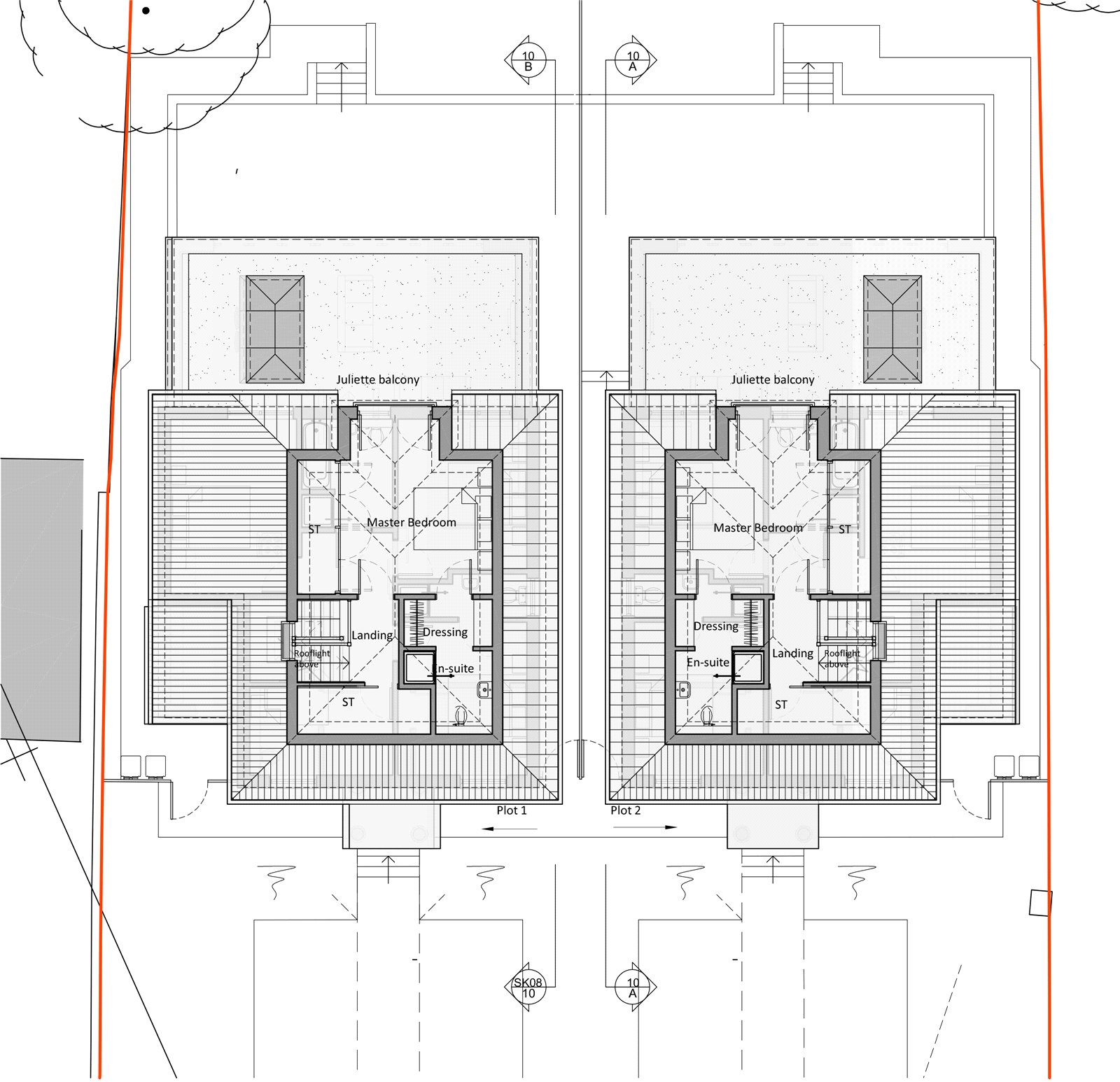
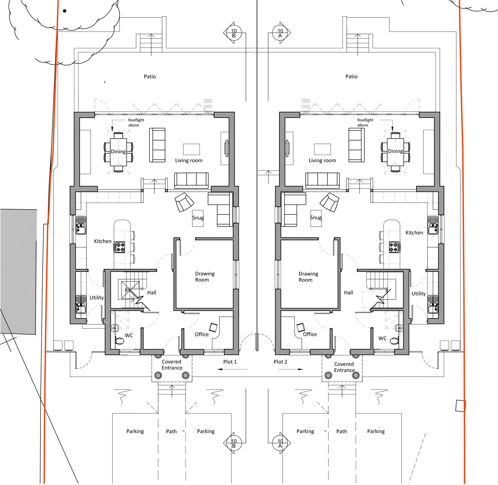
FANTASTIC DEVELOPMENT OPPORTUNITY to acquire this site, currently a bungalow having just received consent to demolish and construct two detached, 2,200sqf (approx.) family homes with very thoughtfully designed accommodation and detached double garages offering more than ample storage, both sitting on good size plots. The land which measures approximately 0.4 acres is in a much desired location in Longfield with a host of useful amenities close at hand including shops, schools, road and rail links. Open fields are close at hand. The property is set back from the road thus providing privacy whilst being a central location.
Location Longfield is a bustling village offering excellent shopping facilities (Waitrose and Co-op included). It is in the catchment area for (an) excellent primary school/s, Longfield Academy and grammar schools. There is a thriving village life with large village hall and superb recreational facilities for the family. Transport links include the main line railway station for the commuter to London Victoria (fast trains 30 minutes) and the A2 and M25 motorways, providing links to Gatwick and Heathrow airports; London; Bluewater; and Ebbsfleet International railway station (20 minutes to London St Pancras).
Directions From Clifton & Co proceed down Ash Road towards Longfield, at the mini roundabout turn right onto the Main Road. Once past the mini roundabout the property will be found a along on the left hand side opposite the school.
Transport Information Longfield Railway Station: 0.8 mile
Ebbsfleet International Eurostar Station: 4.5 miles
The distances calculated are as the crow flies.
Education Please check with the local authority as to catchment areas and intake criteria.
Useful Information We recognise that buying a property is a big commitment and therefore recommend that you visit the local authority websites for more helpful information about the property and local area before proceeding.
Some information in these details are taken from third party sources. Should any of the information be critical in your decision making then please contact Clifton & Co for verification.
Council Tax We are informed this property is in council tax band F, you should verify this with Dartford Borough Council.
Tenure The vendor advises us that this property is Freehold. Should you proceed with the purchase of the property your solicitor must verify these details.
Appliances/Services The mention of any appliances and/or services within these sales particulars does not imply that they are in full efficient working order.
Measurements All measurements are approximate and therefore may be subject to a small margin of error.
Viewing Strictly via Clifton & Co Hartley
Read less