SOLD SUBJECT TO CONTRACT VIA CLIFTON & CO
This five-bedroom family home has recently been completely updated by its current owner. It features a 21-foot brick-built family room/conservatory a new kitchen, and updated bathrooms. Situated on a private road with only four properties and overlooking parkland, this desirable home is located in a quiet and secluded cul-de-sac on the highly sought-after St. Marys Island.
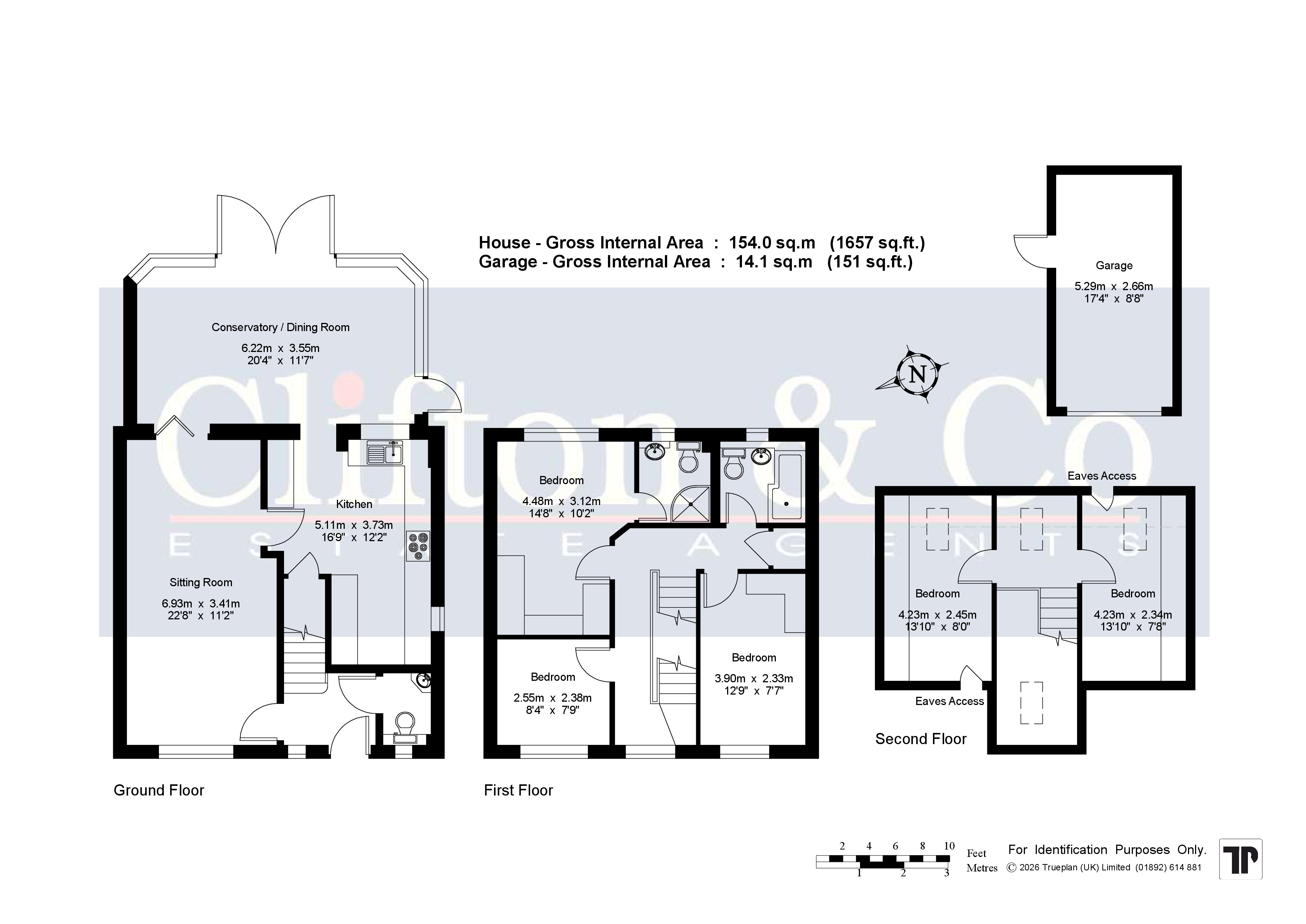
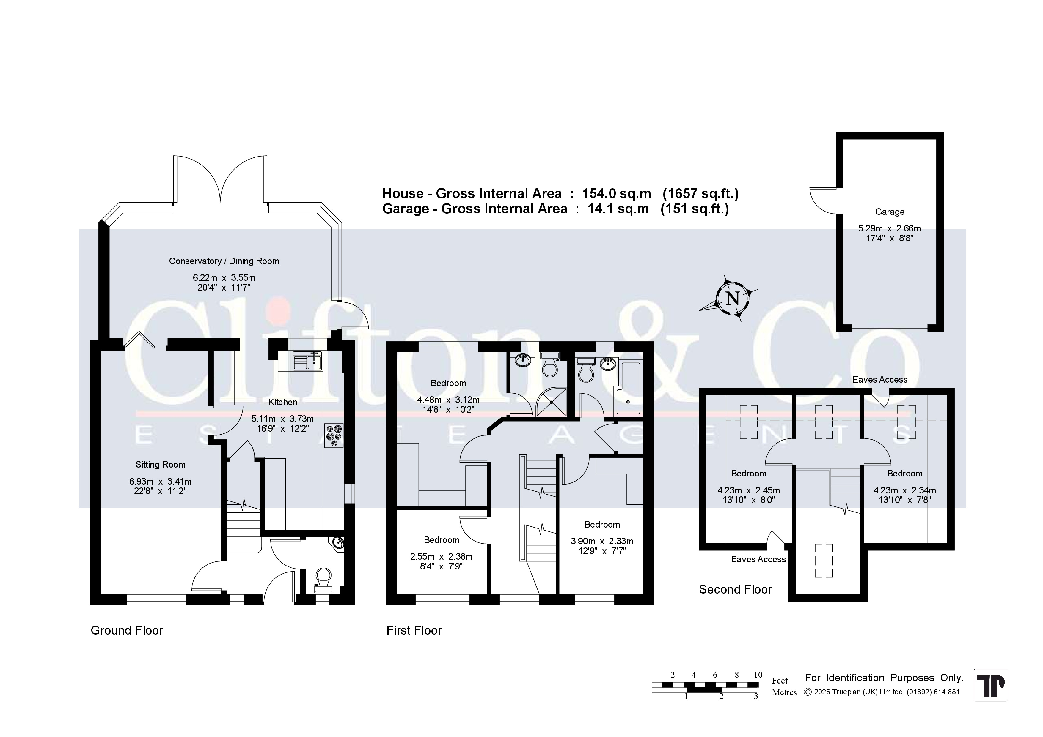
This unique property offers a spacious 1,657 sq. ft. of living space set over three floors. On the ground floor, you will find two large reception rooms, a kitchen, and a cloakroom. The first floor features three bedrooms, including a master bedroom with an en suite shower room, along with a family bathroom. The second floor includes two additional bedrooms and a landing study area.
The hallway on the ground floor provides access to both the cloakroom and the generously sized living room, which measures 228 x 112" and offers views of the park in front of the property. From the living room, you enter the conservatory/dining room through a glass folding door, which measures 20'4" x 11'7" and gives access to the rear garden and entertaining/hot tub area. The kitchen measures 16'9" x 12'2". It has just been fitted with new, high-quality light green units throughout, with wooden work surfaces and modern integrated appliances, including a range gas cooker.
The first floor features three bedrooms. The master bedroom measures 148" x 10'2" and includes quality built-in furniture, along with an updated en-suite shower room. Bedroom two measures 12'9" x 7'7 with a built-in wardrobe, while bedroom three measures 84" x 79 and is currently used as a home gym. The family bathroom has been updated with a contemporary white suite with a shower over the bath, and is fully tiled throughout.
On the second floor, there are two bedrooms: one measuring 1310 x 80 and the other 1310 x 78, (currently used as a home office), both of which have new custom-made fitted wardrobes. Additionally, there is a spacious landing area that could serve as an office or study space.
A brick-paved private road leads to off-street parking for two vehicles beside the property, as well as a single detached garage with access from the rear garden. At the front of the property is a small garden with established planting. The rear garden has recently been hardscaped and features a new paved patio area, which leads to the side of the property and the side gate to the front. There is a covered hot tub area and also an artificial lawned area with space for planters.
Five-bedroom properties in this established area of St. Marys Island rarely come onto the market. This property has recently been tastefully updated and decorated, and features new flooring and carpets throughout. It presents a unique opportunity, situated in one of the most desirable locations on the highly popular St. Marys Island, and being on a quiet private road at the centre of the Island, but close to the central walkway which gives access to the shops, co-op supermarket, restaurants and cafes on the quays by Chatham maritime Marina. In the other direction, you can access the River Medway and riverside path, all within a short walk.
Location Located just moments from scenic riverside walks and within walking distance of shops, a cinema, and restaurants, this home offers an enviable lifestyle in a thriving community. St Marys Islands on-site school, doctors' surgery, and community centre further enhance the propertys appeal.
Entrance Hall
Sitting Room 22'8" x 11'2" (6.9m x 3.4m).
Kitchen 16'9" x 12'2" (5.1m x 3.7m).
Conservatory/Dining Room 20'4" x 11'7" (6.2m x 3.53m).
Entrance Hall
First Floor
Main Bedroom 14'8" x 10'2" (4.47m x 3.1m).
Ensuite Bathroom
Bedroom 12' x 7'7" (3.66m x 2.3m).
Bedroom 8'4" x 7'9" (2.54m x 2.36m).
Family Bathroom
Second Floor
Bedroom 13'10" x 8' (4.22m x 2.44m).
Bedroom 13'10" x 7'8" (4.22m x 2.34m).
Garage 17'4" x 8'8" (5.28m x 2.64m).
Garden
Transport Information Train Stations:
Gillingham 1.4 miles
Strood 2 miles
Rochester 2.5 miles
The distances calculated are as the crow flies.
Local Schools Primary Schools:
St Mary's Island Church of England (Aided) Primary School 0.2 miles
Burnt Oak Primary School 1 mile
Chattenden Primary School 1.1 miles
Oasis Academy Skinner Street 1.2 miles
Wainscott Primary School 1.3 miles
Secondary Schools:
Waterfront UTC 0.7 miles
The Hundred of Hoo Academy 1.1 miles
Rivermead School 1.2 miles
Brompton Academy 1.6 miles
Rochester Independent College 2 miles
Information sourced from Rightmove (findaschool). Please check with the local authority as to catchment areas and intake criteria.
Useful Information We recognise that buying a property is a big commitment and therefore recommend that you visit the local authority websites for more helpful information about the property and local area before proceeding. Some information in these details is taken from third party sources.
Should any of the information be critical in your decision making then please contact Clifton & Co for verification.
Tenure The vendor advises us that this property is Freehold. Should you proceed with the purchase of the property your solicitor must verify these details.
Council Tax We are informed this property is in Council tax band E, you should verify this with Medway Borough Council.
Appliances/Services The mention of any appliances and/or services within these particulars does not imply that they are in full efficient working order.
Measurements All measurements are approximate and therefore may be subject to a small margin of error.
Viewings Monday to Friday 9.00 am 6.30 pm
Saturday 9.00 am 6.00 pm
Viewing via Clifton & Co Hartley office.
Ref HA/CD/JT/250119 - HAR260006/D1
Read less