SOLD VIA CLIFTON & CO
Grenfell Cottage is an attractive late 1940s detached property in one of Hartleys most sought after locations occupying a secluded location, it has been extended to make this a four bedroom family home.
This gem of a home boasts many features including a detached double carport for covered parking with a driveway to front for additional parking. The property also has a contemporary garden room which makes for a great entertaining space but would also make an ideal home office. The property itself, in our opinion, is an adaptable abode for different family needs. The versatile accommodation boasts various adaptable spaces with two bedrooms and shower bathroom to the ground floor, one of these bedrooms could be used as a study or home gym as utilised by the current owners. Just one of the many spaces that are worthy of a mention to the ground floor is the kitchen/breakfast room, with adjoining utility room and wc. The kitchen area boasts a log burner for those winter days and evenings, the two reception rooms are a generous size, and the dining room has been used as a sitting room in the past. The accommodation is completed with a further two bedrooms and bathroom to the first floor. The rear secluded south easterly garden enjoys many features including a decking area with a round sunken pool, additionally there is a rear paved patio area with timber gazebo for covered seating which makes for great external outdoor entertaining spaces along with the contemporary garden room. It is one of those properties that really needs to be seen to be fully appreciated.
Location Hartley lies in the northern side of the North Downs between Sevenoaks and Dartford/Gravesend. The thriving village offers local shops including a co-op, post office and two outstanding primary schools. Hartley Country Club is set in 10 acres of glorious Kent countryside and offers a unique combination of sporting and social attractions. The village of Longfield offers comprehensive shopping facilities, including Waitrose, doctors surgery, a local bakery and butchers to name a few and a mainline railway station with services to London Victoria. Ebbsfleet international provides fast services to St Pancras and is within 5.5 miles. The Bluewater shopping centre with its varied range of shops and recreational facilities is approximately 5 miles from Hartley village.
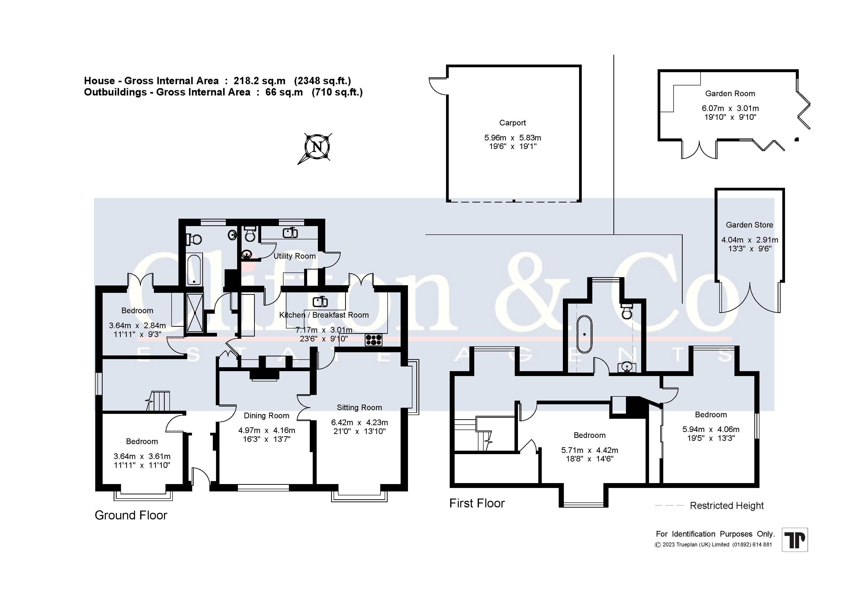
Ground Floor
Entrance Porch Door to front. Wood flooring. Plain coved ceiling.
Entrance Hall Open plan to entrance porch. Georgian style window to side. Carpet. Plain coved ceiling. Two radiators. Stairs to landing.
Bathroom Georgian style window to rear. Plain coved ceiling. Downlighters. Radiator. Panelled bath. Shower cubicle. Low level wc. Wash hand basin. Airing cupboard. Underfloor heating.
Bedroom 11'11" x 11'10" (3.63m x 3.6m). Georgian style window to front. Carpet. Plain coved ceiling. Radiator.
Bedroom 11'11" x 9'3" (3.63m x 2.82m). French doors to rear. Textured and coved ceiling. Radiator. Built-in wardrobe.
Sitting Room 21' x 13'10" (6.4m x 4.22m). Georgian style square bay window to front. Georgian style square bay window to side. Wood flooring. Plain coved ceiling. Two radiators.
Dining Room 16'3" x 13'7" (4.95m x 4.14m). Georgian style window to front. Wood flooring. Plain coved ceiling. Radiator. Period style cast iron working fireplace.
Kitchen/Breakfast Room 23'6" x 9'10" (7.16m x 3m). French doors to rear. Door to utility room. Tiled flooring. Plain ceiling. Downlighters. Feature log burner. Fitted wall and base units with breakfast bar and wood surfaces. Inset stainless steel sink and drainer with mixer taps. Range Master cooker with stainless steel filter hood. Two built-in cupboards. Underfloor heating.
Utility Room Georgian style window to rear. Door to side. Tiled flooring. Plain coved ceiling. Downlighters. Fitted base units with wood surfaces. Single drainer sink and waste disposal unit with mixer taps. Space for washing machine and dishwasher. Space for fridge/freezer. Boiler in cupboard. Underfloor heating.
WC Tiled flooring. Plain coved ceiling. Low level wc. Wash hand basin. Underfloor heating.
First Floor
Landing Georgian style window to rear. Wood flooring. Plain coved ceiling. Radiator.
Main Bedroom 19'5" x 13'3" (5.92m x 4.04m). Georgian style window to rear. Georgian style window to side. Wood flooring. Plain ceiling. Downlighters. Radiator. Built-in mirror wardrobes.
Bedroom 18'8" x 14'6" (5.7m x 4.42m). Georgian style window to front. Carpet. Plain coved ceiling. Access to loft. Radiator. Dressing room area with radiator.
Bathroom Georgian style window to rear. Tiled flooring. Plain ceiling. Downlighters. Radiator. Freestanding bath. Wash hand basin. Low level wc. Extractor fan.
Outside
Carport 19'6" x 19'1" (5.94m x 5.82m). Open to front. Door to rear garden.
Rear Garden Patio. Lawn area. Fenced. Flower beds. Decking with sunken round pool. Rear paved patio with timber gazebo. Timber workshop.
Garden Room 19'10" x 9'10" (6.05m x 3m). Bi fold French doors. Wood flooring. Plain ceiling. Downlighters.
Garden Store 13'3" 9'6" (4.04m 2.9m).
Transport Information Longfield Railway Station: 1.4 miles
Ebbsfleet International Station: 5.8 miles
The distances calculated are as the crow flies.
Education Please check with the local authority as to catchment areas and intake criteria.
Useful Information We recognise that buying a property is a big commitment and therefore recommend that you visit the local authority websites for more helpful information about the property and local area before proceeding.
Some information in these details are taken from third party sources. Should any of the information be critical in your decision making then please contact Clifton & Co for verification.
Council Tax We are informed this property is in council tax band E, you should verify this with Sevenoaks Borough Council.
Tenure The vendor advises us that this property is Freehold. Should you proceed with the purchase of the property your solicitor must verify these details.
Appliances/Services The mention of any appliances and/or services within these sales particulars does not imply that they are in full efficient working order.
Measurements All measurements are approximate and therefore may be subject to a small margin of error.
Viewing Strictly via Clifton & Co Hartley
Read less