Guide Price £650,000
4 Bedroom Detached Bungalow Ref: HAR080181
Clifton & Co Estate Agents
1 Church Road
Hartley
Kent
DA3 8DL
United Kingdom
hartley@cliftonandco.comSOLD SUBJECT TO CONTRACT VIA CLIFTON & CO
For sale by Modern Method of Auction; Starting Bid Price £650,000 plus Reservation Fee.
SOLD SUBJECT TO CONTRACT VIA CLIFTON & CO
For sale by Modern Method of Auction; Starting Bid Price £650,000 plus Reservation Fee.
For Sale by Auction T & C's apply
Subject to an undisclosed Reserve Price
Reservation Fee applicable
The Modern Method of Auction
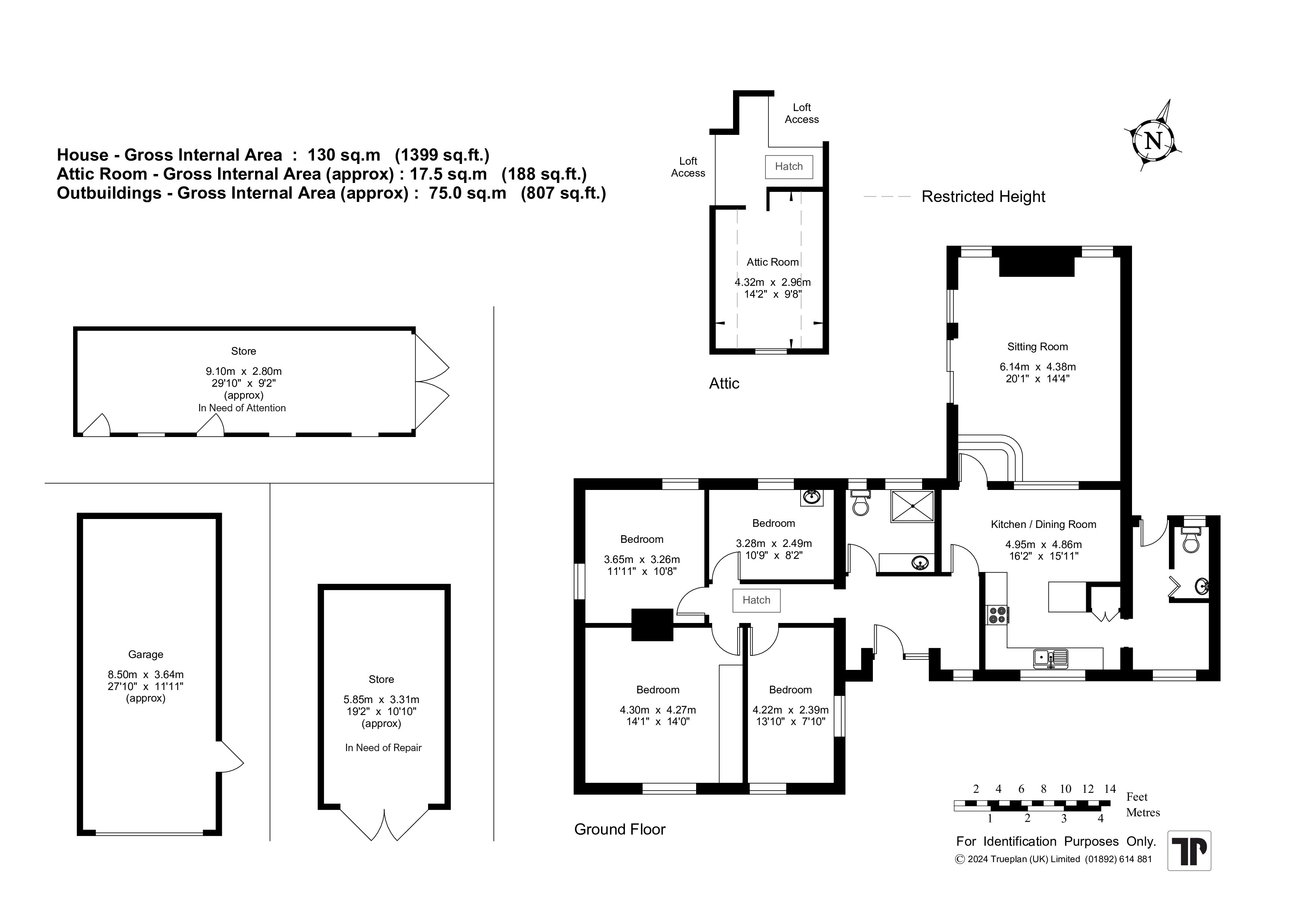
Stocks Mead is coming to the market for the first time since 1969 and is located off Church Road, tucked away down a private lane in its own secluded idyllic peaceful 0.7 of an acre plot which is screened by mature trees and hedges. This four bedroom extended bungalow and outbuildings are in need of total refurbishment but has huge potential. On entering the property from the entrance hall you will find a kitchen dining room that leads to a sunken lounge with vaulted ceiling, there is a separate utility room off the kitchen which also has a cloakroom / WC. The property benefits from four good sized bedrooms and a family shower room and last but not least there is a secret loft room accessed by a loft ladder. The plot is located in the Greenbelt so would suit an owner occupier looking to refurbish or do a replacement dwelling project to their own requirements, subject to the necessary planning consents. This true gem offering vacant possession is now looking for a new custodian that will bring life back to this home and grounds and is sure to suit an array of buyers, including growing families or those from London looking for an 'escape to the country' and a 'get away from it all' experience and yet is still conveniently located for road and rail links into central London.
xzxzx
Location Hartley lies in the northern side of the North Downs between Sevenoaks and Dartford/Gravesend. The thriving village offers local shops including a co-op, post office and two outstanding primary schools. Hartley Country Club is set in 10 acres of glorious Kent countryside and offers a unique combination of sporting and social attractions. The village of Longfield offers comprehensive shopping facilities, including Waitrose, doctors surgery, a local bakery and butchers to name a few and a mainline railway station with services to London Victoria. Ebbsfleet international provides fast services to St Pancras and is within 5.5 miles. The Bluewater shopping centre with its varied range of shops and recreational facilities is approximately 5 miles from Hartley village.
Directions From our Clifton & Co Hartley office proceed along Church Road where the property can be found on the right hand side.
Auctioneer's Comments This property is for sale by the Modern Method of Auction. Should you view, offer or bid on the property, your information will be shared with the Auctioneer, iamsold. This method of auction requires both parties to complete the transaction within 56 days of the draft contract for sale being received by the buyers solicitor. This additional time allows buyers to proceed with mortgage finance (subject to lending criteria, affordability and survey). The buyer is required to sign a reservation agreement and make payment of a non-refundable Reservation Fee. This being 4.5% of the purchase price including VAT, subject to a minimum of £6,000.00 including VAT. The Reservation Fee is paid in addition to purchase price and will be considered as part of the chargeable consideration for the property in the calculation for stamp duty liability.
Further Auctioneer's Comments Buyers will be required to go through an identification verification process with iamsold and provide proof of how the purchase would be funded. This property has a Buyer Information Pack which is a collection of documents in relation to the property. The documents may not tell you everything you need to know about the property, so you are required to complete your own due diligence before bidding. A sample copy of the Reservation Agreement and terms and conditions are also contained within this pack. The buyer will also make payment of £300.00 including VAT towards the preparation cost of the pack, where it has been provided by iamsold. The property is subject to an undisclosed Reserve Price with both the Reserve Price and Starting Bid being subject to change.
Referral Arrangements The Partner Agent and Auctioneer may recommend the services of third parties to you. Whilst these services are recommended as it is believed they will be of benefit; you are under no obligation to use any of these services and you should always consider your options before services are accepted. Where services are accepted the Auctioneer or Partner Agent may receive payment for the recommendation and you will be informed of any referral arrangement and payment prior to any services being taken by you.
Sellers Insight Stocks Mead has been my home, and home from home, since 1969 when my parents moved there from another house in Hartley. They were gutted to have missed out buying it earlier, but fate intervened when the new owners had to relocate, so they weren't going to lose out again.
The wonderful memories of childhood for my brother and I began there as the garden was a dream for children. We swung from ropes and swings in the many apple and cherry trees and made dens in the many different areas. My father was a huge gardening fan and over the years he spent most of his time tending the roses, planting and replanting the beautiful flower beds, boxes and pots, and building the terrace on which we had many years of barbecues and parties. My father built a tennis court on which we would play late into summer evenings, and in later years it hosted a football pitch with goals, and croquet and boules.
. The garden had many mature trees offering an abundance of Kent cherries, from which my father made some rather dubious cherry wine which was stored in the out house. The outbuildings served many purposes in their time, from a local museum of fossils and war memorabilia curated by my brother, to art studios and storage.
The position of the house, up its lane off the main road, means it is perfectly secluded and quiet. A true haven in Hartley.
Entrance Hall Door to front with frosted panelled window to either side. Frosted round window to front. Carpet. Plain coved ceiling. Two loft accesses. Two radiators. Fuse board. Electric meter.
Sitting Room 20'1" x 14'4" (6.12m x 4.37m). Two double glazed windows to rear. Double glazed patio doors to side. Carpet. Vaulted beamed ceiling. Two radiators. Brick built open fireplace with feature brick wall. Window to kitchen/diner.
Kitchen/Diner 16'2" (4.93m) x 15'11" (4.85m) narrowing to 12' (3.66m). Double glazed window to front. Georgian style window to sitting room. Tiled flooring. Beamed ceiling. Radiator. Fitted wall and base units with work tops over. Tiled surfaces. One and a half bowl modern sink and drainer unit. Space for cooker. Airing cupboard.
Utility Room 9'6" x 6'9" (2.9m x 2.06m). Double glazed window to front. Door to rear. Vinyl flooring. Plain ceiling. Radiator. Spaces for washing machine, fridge/freezer and tumble dryer. Floor mounted Eurostar boiler.
W.C. 6'5" x 3'3" (1.96m x 1m). Double glazed window to rear. Vinyl flooring. Plain ceiling. Low level W.C. Wash hand basin. Shaver point with light.
Main Bedroom 14'1" x 14' (4.3m x 4.27m). Double glazed window to front. Carpet. Papered and coved ceiling. Radiator. Built-in wardrobe.
Bedroom Two 11'11" x 10'8" (3.63m x 3.25m). Double glazed windows to side and rear. Carpet. Plain coved ceiling. Radiator.
Bedroom Three 13'10" x 7'10" (4.22m x 2.4m). Double glazed windows to front and side. Carpet. Textured coved ceiling. Radiator.
Bedroom Four 10'9" x 8'2" (3.28m x 2.5m). Double glazed window to rear. Carpet. Plain coved ceiling. Radiator. Wash hand basin.
Shower Room 8'1" x 7'3" (2.46m x 2.2m). Two double glazed frosted windows to rear. Carpet. Textured ceiling. Radiator. Shower cubicle. Wash hand basin. Low level W.C. Cork tiling
Loft Room 14' x 9'6" (4.27m x 2.9m). Double glazed window to front. Floorboards. Papered ceiling. Access to eaves storage.
Plot 0.77 acres approx. Overgrown. Disused tennis court. Mature hedging and tree boundaries.
Store One 19'2" x 10'10" (5.84m x 3.3m). In need of repair.
Store Two 29'10" x 9'2" (9.1m x 2.8m).
Garage 27'10" x 11'11" (8.48m x 3.63m).
Transport Information Train Stations:
Longfield 1.2 miles
Meopham 2 miles
Sole Street 2.9 miles
The property is also within easy reach of Ebbsfleet Eurostar International Station.
The distances calculated are as the crow flies.
Local Schools Primary Schools:
Our Lady of Hartley Catholic Primary School 0.5 miles
Milestone Academy 0.6 miles
Hartley Primary Academy 0.6 miles
New Ash Green Primary School 0.8 miles
Langafel Church of England Voluntary Controlled Primary School 1.1 miles
Rowhill School 1.1 miles
Steephill School 1.1 miles
Secondary Schools:
Milestone Academy 0.6 miles
Rowhill School 1.1 miles
Helen Allison School 1.9 miles
Meopham School 2.1 miles
Northfleet School for Girls 3.7 miles
Information sourced from Rightmove (findaschool). Please check with the local authority as to catchment areas and intake criteria.
Longfield Academy 1.2 miles
Useful Information We recognise that buying a property is a big commitment and therefore recommend that you visit the local authority websites for more helpful information about the property and local area before proceeding.
Some information in these details are taken from third party sources. Should any of the information be critical in your decision making then please contact Clifton & Co for verification.
Tenure The vendor confirms to us that the property is freehold. Should you proceed with the purchase of the property your solicitor must verify these details.
Council Tax We are informed this property is in band G. For confirmation please contact Sevenoaks Borough Council.
Appliances/Services The mention of any appliances and/or services within these particulars does not imply that they are in full efficient working order.
Measurements All measurements are approximate and therefore may be subject to a small margin of error.
Opening Hours Monday to Friday 9.00 am 6.30 pm
Saturday 9.00 am 6.00 pm
Viewing via Clifton & Co Hartley office.
Ref HA/CB/DH/240326 - HAR080181/D1
Read lessImportant Information
Interested in this property?
If you are interested in this property why not arrange a viewing? Just send us your details and we'll be in touch to arrange it for you.
Value My Property