SOLD SUBJECT TO CONTRACT VIA CLIFTON & CO
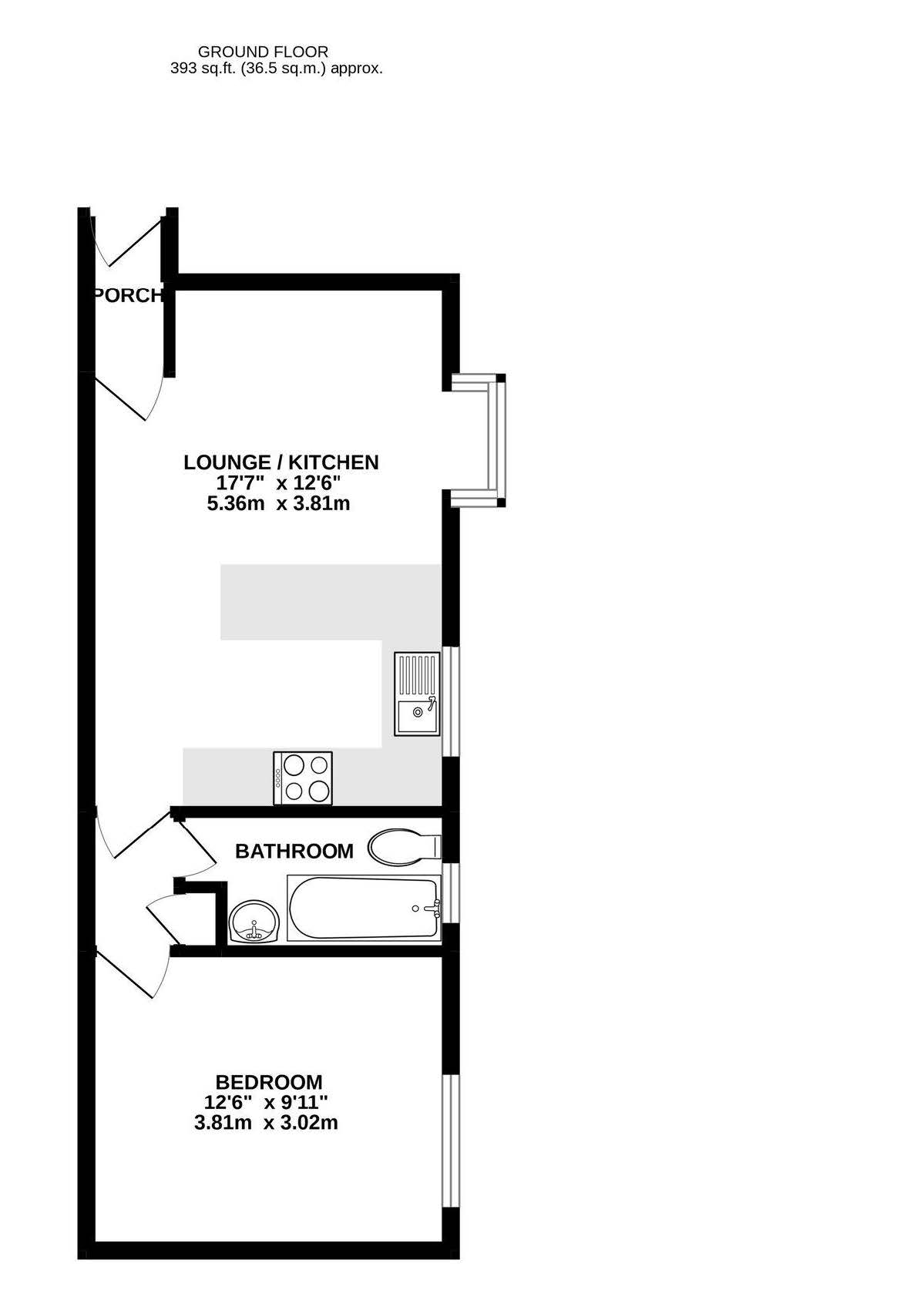
A one bedroom first floor apartment at Gregory Close, ME3 9LJ, situated between Rainham and Parkwood. 393 Sq.Ft of living space complete with an entrance hallway, open plan kitchen, living room, bathroom and bedroom.
The kitchen has plenty of storage with a good range of both wall and floor units, electric cooker, microwave, free standing fridge/freezer, washing machine and space for a dishwasher.
The bathroom has recently been updated, fully tiled in grey with modern bathroom fittings including bath with shower above, mirror cabinet and heated towel rail.
Would make a great investment property or suitable for a first time buyer/retiree. The current vendor will be extending the lease to 125 years upon completion. Service charge £752.00 per annum. Ground rent £60.00 per annum. Allocated parking space.
Location Gillingham is a historic town and a retail hub within the Medway unitary authority in Kent, England, known for its maritime and military connections, particularly with the nearby Chatham Dockyard and the Royal Engineers Museum. Gillingham offers a twice-weekly market, a pedestrianized high street, and serves as a gateway to the surrounding North Downs countryside.
Entrance Hall 5'2" x 2'9" (1.57m x 0.84m).
Open Kitchen / Living area 12'6" x 17'7" (3.8m x 5.36m).
Bedroom 12'6" x 9'11" (3.8m x 3.02m).
Bathroom 8'11" x 4'10" (2.72m x 1.47m).
Transport Information Rainham Station: 1.5 miles
Gillingham Station: 3.6 miles
Chatham Station: 4.3 miles
Local Schools Primary Schools:
Dean Wood Primary Shool: 0.4 miles
Fairview Community Primary School: 0.7 miles
Miers Court Primary School: 0.9 miles
Thames View Primary School: 1.8 miles
Barnsole Primary School: 3.2 miles
Brompton Westbrook Primary School: 4.1 miles
Burnt Oak Primary School: 4 miles
Secondary Schools:
The Howard School: 1.3 miles
Rainham School for Girls: 1.3 miles
Rainham Mark Grammar School: 1.8 miles
The Robert Napier School: 2.9 miles
Chatham Grammar: 3 miles
Brompton Academy: 3.7 miles
Leigh Academy Rainham: 3.8 miles
Information sourced from Rightmove (findaschool). Please check with the local authority as to catchment areas and intake criteria.
Useful Information We recognise that buying a property is a big commitment and therefore recommend that you visit the local authority websites for more helpful information about the property and local area before proceeding.
Some information in these details are taken from third party sources. Should any of the information be critical in your decision making then please contact Clifton & Co for verification.
Council Tax We are informed this property is in council tax band A, you should verify this with Medway Borough Council.
Tenure/Service Charges The vendor confirms to us that this property is Leasehold and will be extending the lease to 125 years upon completion. We are advised by the vendor that the service charge for the previous year was £752 per annum. Should you proceed with the purchase of the property your solicitor must verify these details.
Appliances/Services The mention of any appliances and/or services within these sales particulars does not imply that they are in full efficient working order.
Measurements All measurements are approximate and therefore may be subject to a small margin of error.
Opening Hours Monday to Friday 9.00 am 6.30 pm
Saturday 9.00 am 6.00 pm
Viewing via Clifton & Co Hartley office.
Ref HA/CD/JT/250911 - HAR250196/D1
Read less