SOLD VIA CLIFTON & CO
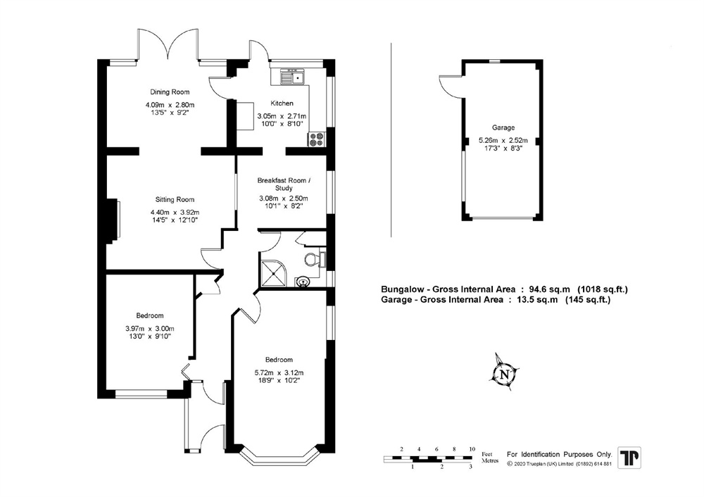
Ideally situated within walking distance of Longfield Shopping Centre and Mainline Railway Station this substantial two bedroom semi detached bungalow provides practical tiled entrance porch and hallway.
The spacious lounge leads to dining room with double French doors opening out onto well stocked gardens which back onto open farmland. There is kitchen and separate breakfast room/study, master bedroom of 18'8 x 10'4 with further double bedroom. Outside is driveway parking for several cars and garage.
LOCATION Longfield is a bustling village offering excellent shopping facilities, excellent primary school and Longfield Academy. There is thriving village life and large village hall and superb recreational facilities for the family together with main line railway station for the commuter to London Victoria and the A2 and M25 motorways providing links to both Gatwick and Heathrow airports, London, Bluewater and Ebbsfleet International railway station providing a 20 minute link to London St Pancras.
DIRECTIONS From Clifton & Co proceed down Ash Road towards Longfield, at the mini roundabout turn right onto the Main Road. Once past the mini roundabout the property will be found a short way along on the left hand side marked by a Clifton & Co For Sale board.
ENTRANCE PORCH 7'4" x 7'3" (2.24m x 2.2m). Double glazed window to side and double glazed door to front. Tiled flooring.
ENTRANCE HALL Tiled flooring to complement porch. Meter/storage cupboard. Double radiator. Access to loft space via retractable loft ladder.
LOUNGE 12'8" x 12'9" (3.86m x 3.89m). Feature fireplace with gas fire with serviced back boiler supplying central heating and domestic hot water. Three wall light points. Opening to:-
DINING ROOM 13'4" x 8'9" (4.06m x 2.67m). Double glazed windows and double French doors opening onto garden. Double radiator.
KITCHEN 10'3" x 8'9" (3.12m x 2.67m). A double aspect room with double glazed window to side and double glazed window and door onto garden. Comprising ample work surfaces with inset single drainer sink unit. Range of floor and matching wall cupboards. Plumbing for automatic washing machine/dishwasher. Electric cooker point. Tiled flooring. Opening to:-
BREAKFAST ROOM/STUDY 10'1" x 8'2" (3.07m x 2.5m). Tiled flooring. Double glazed window to side. Radiator.
BEDROOM 1 18'8" x 10'4" (5.7m x 3.15m). A double aspect room with double glazed window to side and double glazed bay window to front. Two radiators.
BEDROOM 2 13' x 9'8" (3.96m x 2.95m). Double glazed window to front. Double radiator.
SHOWER ROOM 7'4" x 6'3" (2.24m x 1.9m). Double glazed window to side. Comprising curved shower cubicle with power shower. Vanity wash hand basin. Close coupled wc with concealed cistern. Tiled floors and walls. Built-in airing cupboard. Inset spotlights. Towel radiator.
OUTSIDE Block paved driveway with parking for several cars.
GARDENS TO FRONT Laid to lawn with flowers and shrubs.
GARAGE 17'6" x 8'3" (5.33m x 2.51m). With up and over main door. Plumbing for washing machine. Electric light and power. Personal door to garden.
REAR GARDEN With paved patio area leading to gardens laid to lawn well stocked with mature flower and shrub borders. Outside lights and water tap. Backing onto fields.
TRANSPORT INFORMATION Longfield Railway Station: 0.7 miles
Ebbsfleet International Railway Station: 5.2 miles
All distances are approximate and calculated as the crow flies. For more information on the distance please visit:
There is a regular commuter coach service to London via Canary Wharf - Monday to Friday. For further information please visit
For information regarding travel please visit:
EDUCATION Please check with the local authority as to catchment areas and intake criteria.
USEFUL INFORMATION We recognise that buying a property is a big commitment and therefore recommend that you visit the local authority website for more helpful information about the property and local area before proceeding.
COUNCIL TAX We are informed this property is in council tax band E, you should verify this with Dartford Borough Council on .
TENURE The vendor advises us that this property is Freehold. Should you proceed with the purchase of the property your solicitor must verify these details.
APPLIANCES/SERVICES The mention of any appliances and/or services within these sales particulars does not imply that they are in full efficient working order.
MEASUREMENTS All measurements are approximate and therefore may be subject to a small margin of error.
OPENING HOURS
Monday to Friday 9.00 am 6.30 pm, Saturday 9.00 am 6.00 pm
REF
HA/SD/JT/191230 - 4789465 /D1 200615/D2
Read less