Clifton & Co Estate Agents
1 Church Road
Hartley
Kent
DA3 8DL
United Kingdom
hartley@cliftonandco.comGUIDE PRICE £550,000 - £600,000
Exciting Development Opportunity for Conversion of this Attractive Existing Part Grade II Listed Building in the Heart of New Ash Green Village.
GUIDE PRICE £550,000 - £600,000
Exciting Development Opportunity for Conversion of this Attractive Existing Part Grade II Listed Building in the Heart of New Ash Green Village.
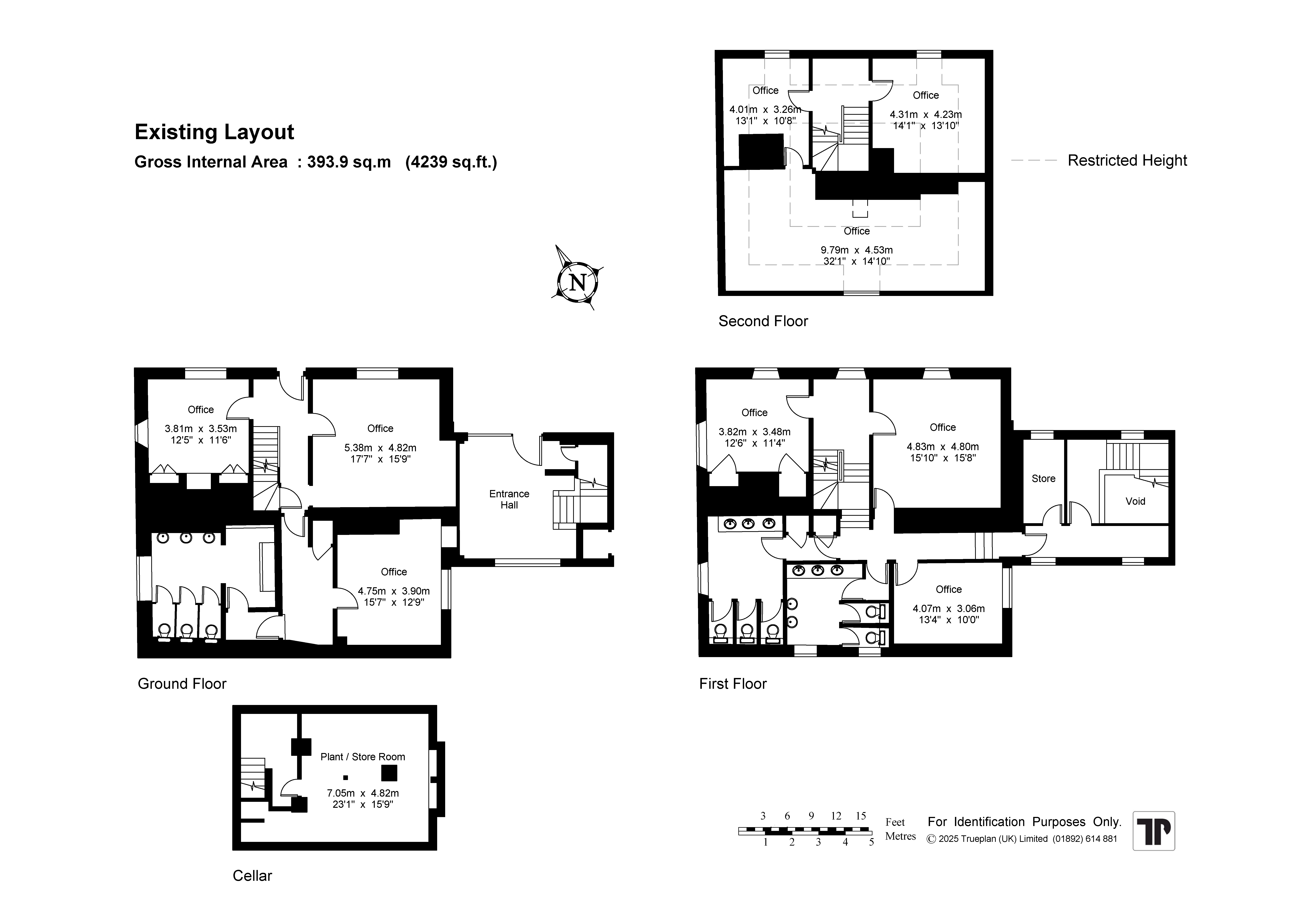
Property Description Planning is granted for the conversion of this existing part Grade II listed building formally a Manor House from offices to residential use by the creation of six one-bedroom apartment dwellings. New entrance porch. Alterations to fenestration. Installation of rooflights. Hard and soft landscaping.
This development opportunity at The Manor House in New Ash Green a substantial part Grade II-listed property set in a prime village location with excellent transport links. This attractive period building currently benefits from planning approval for the conversion of the existing office premises into six one-bedroom apartments. The scheme provides for a new entrance porch, alterations to the fenestration, installation of rooflights, and associated hard and soft landscaping, complete with allocated parking and landscaping area.
In addition to the approved apartment scheme, the property offers the alternative opportunity to reinstate the building as a single residential dwelling (subject to the usual planning permissions) offering flexibility for the incoming purchaser or developer to tailor the outcome. The site includes dedicated parking and soft landscaping which will complement the built heritage. Vacant possession is offered, making this a rare and compelling opportunity to acquire a landmark property in a highly accessible location and to realise either a high-value apartment conversion or a high-end single dwelling with amenity garden area and parking in a village setting.
Planning Ref: 25/01816/FUL
The Building History Historically the building is rooted in the medieval manor context of the Ash-cum-Ridley and New Ash Green area, where the manor of North Ash is noted in parish records as having existed for some four hundred years and prior to the creation of the planned village of New Ash Green. Indeed, parts of the Georgian-fronted manor house are thought to date back to the 13th century according to local parish history. The listing for the building confirms its special architectural and historic interest as a solid brick manor house of traditional construction with pitched tiled roof, set within mature grounds and benefiting from substantial parking and gardens.
Location Situated in the heart of New Ash Green village, the site is within convenient reach of local amenities including the village Co-Op and shopping centre, whilst also providing swift access to major transport arteries: the M25, Gatwick and Heathrow airports, and the channel ports via the M20/A2 corridor. Rail connections are excellent with Ebbsfleet International nearby and services at Longfield Station offering a commute into London Victoria in around 30 minutes. As well as a plethora of recreational activities, including some notable golf clubs such as London Golf Club in Ash, Moreover, a wide range of shops, restaurants in nearby Longfield and services and at Bluewater shopping centre.
Directions From Clifton & Co Hartley office proceed left along Ash Road, continue to the roundabout and go straight across (this is a continuation of Ash Road). Follow the road along and turn left into North Ash Road where the development can be found along on the left hand side.
Sales & Viewing Information - Services All intending purchasers are strongly advised to make their own enquiries with the relevant statutory undertakers to ensure availability and adequacy of any services.
Tenure The site is to be sold Freehold with vacant possession on Completion.
Method of Sale Offers are invited by way of private treaty. All bids must be submitted in writing to Clifton & Co Land & New Homes.
In submitting a proposal, please include the following:
Offer price
Details of any assumptions and conditions, including any abnormal costs.
Due diligence already undertaken, including confirmation of reviewing the website information
Due diligence required prior to exchange of contracts along with associated timeframe.
Confirmation of exchange and completion timescales.
Confirmation of purchasing entity, including full contact details.
Board approval status or required process. confirmation of funds, (including Bank/Loan confirmation if required.)
Full solicitors details
Previous track record of similar purchases.
The Vendor reserves the right not to accept the highest nor any bid made for the property.
As a regulated industry under anti-money laundering regulations Clifton & Co will need to verify the identity of the purchasers and this will be completed before Heads of Terms are issued.
Viewing Strictly by appointment with Clifton & Co Hartley Office.
Misrepresentation Clause Clifton & Co for themselves and for the vendors of this property for whom they act, give notice that:
These particulars are prepared only for the guidance of prospective purchasers. They are intended to give a fair overall description of the property but do not constitute the whole or any part of an offer or contract. Clifton & Co undertake to comply with the terms of the Property Misdescriptions Act 1991, but prospective purchasers must satisfy themselves as to the accuracy of the contents of these particulars, and Clifton & Co will not be liable in negligence for any loss arising from the use of these particulars.
Any information contained herein (whether in the text, plans or photographs) is given in good faith but Clifton & Co cannot guarantee the accuracy of any description, dimensions, references to condition, necessary permissions for use and occupation or any other details contained therein, nor should any information contained herein be relied upon as a statement or representation of fact. Prospective purchasers or tenants must satisfy themselves as to the accuracy of all information contained in these particulars.
Nothing in these particulars shall be deemed to be a statement that the property is in good condition or otherwise, and reference to any plant, machinery, equipment, services, fixtures or fittings at the property shall not constitute a representation as to its state or condition or that it is capable of fulfilling its intended function. Prospective purchasers should satisfy themselves as to the fitness of such items for their requirements.
The photographs appearing in this brochure show only certain parts and aspects of the property. Certain aspects of the property may have changed since the photographs were taken and it should not be assumed that the property remains precisely as displayed in the photographs. It should not be assumed that everything shown in the photographs is included in the sale of the property. Furthermore, no assumptions should be made in respect of parts of the property which are not shown in the photographs.
Any reference in these particulars to the fact that alterations have been carried out or that a particular use is made of any part of the property is not intended to be a statement that any necessary planning, building regulations or other consents have been obtained and these matters must be verified by any intending purchaser.
No employee of Clifton & Co has any authority to make or give any representation or warranty whatsoever in relation to the property.
Transport Information Train Stations:
Longfield 2.3 miles
Meopham 2.9 miles
Sole Street 3.4 miles
Brough Green & Wrotham 4.8 miles
Ebbsfleet Eurostar International Station 5.5 miles
The distances calculated are as the crow flies.
Local Schools Primary Schools:
New Ash Green Primary School 0.3 miles
Leigh Academy Milestone 0.6 miles
Leigh Academy Hartley 1.4 miles
Fawkham Church of England Voluntary Controlled Primary School 1.4 miles
Our Lady of Hartley Catholic Primary School 1.5 miles
Secondary Schools:
Leigh Academy Milestone 0.6 miles
Meopham School 2.4 miles
Helen Allison School 2.4 miles
Rowhill School 2.2 miles
Longfield Academy 2.2 miles
Wrotham School 4.4 miles
Information sourced from Rightmove (findaschool). Please check with the local authority as to catchment areas and intake criteria.
Useful Information We recognise that buying a property is a big commitment and therefore recommend that you visit the local authority websites for more helpful information about the property and local area before proceeding.
Some information in these details is taken from third party sources. Should any of the information be critical in your decision making then please contact North Kent Fine & Country for verification.
Measurements All measurements are approximate and therefore may be subject to a small margin of error.
Ref HA/CB/JT/260202 - HAR250229/d2
Read lessImportant Information
Interested in this property?
If you are interested in this property why not arrange a viewing? Just send us your details and we'll be in touch to arrange it for you.
Value My Property