Guide Price £480,000
3 Bedroom Semi-Detached House Ref: HAR210233
Clifton & Co Estate Agents
Pond View House, 6 High Street
Otford
Sevenoaks
Kent
TN14 5PQ
United Kingdom
otford@cliftonandco.comFor sale by Modern Method of Auction; Starting Bid Price £480,000 plus Reservation Fee.
Read moreFor sale by Modern Method of Auction; Starting Bid Price £480,000 plus Reservation Fee.
For Sale by Modern Method of Auction
Terms and Conditions Apply
Vacant Possession
Potential to Extend (STPP)
This attractive three bedroom semi-detached property is well-placed in a prime position close to Shoreham village centre and within a short walking distance to Shoreham Station.
Whilst in need of upgrading and modernisation this unusual property is situated on a large plot with gardens on three sides and a detached garage. On the market for the first time in many years, this much loved family home presents an exciting opportunity to completely renovate and redesign throughout.
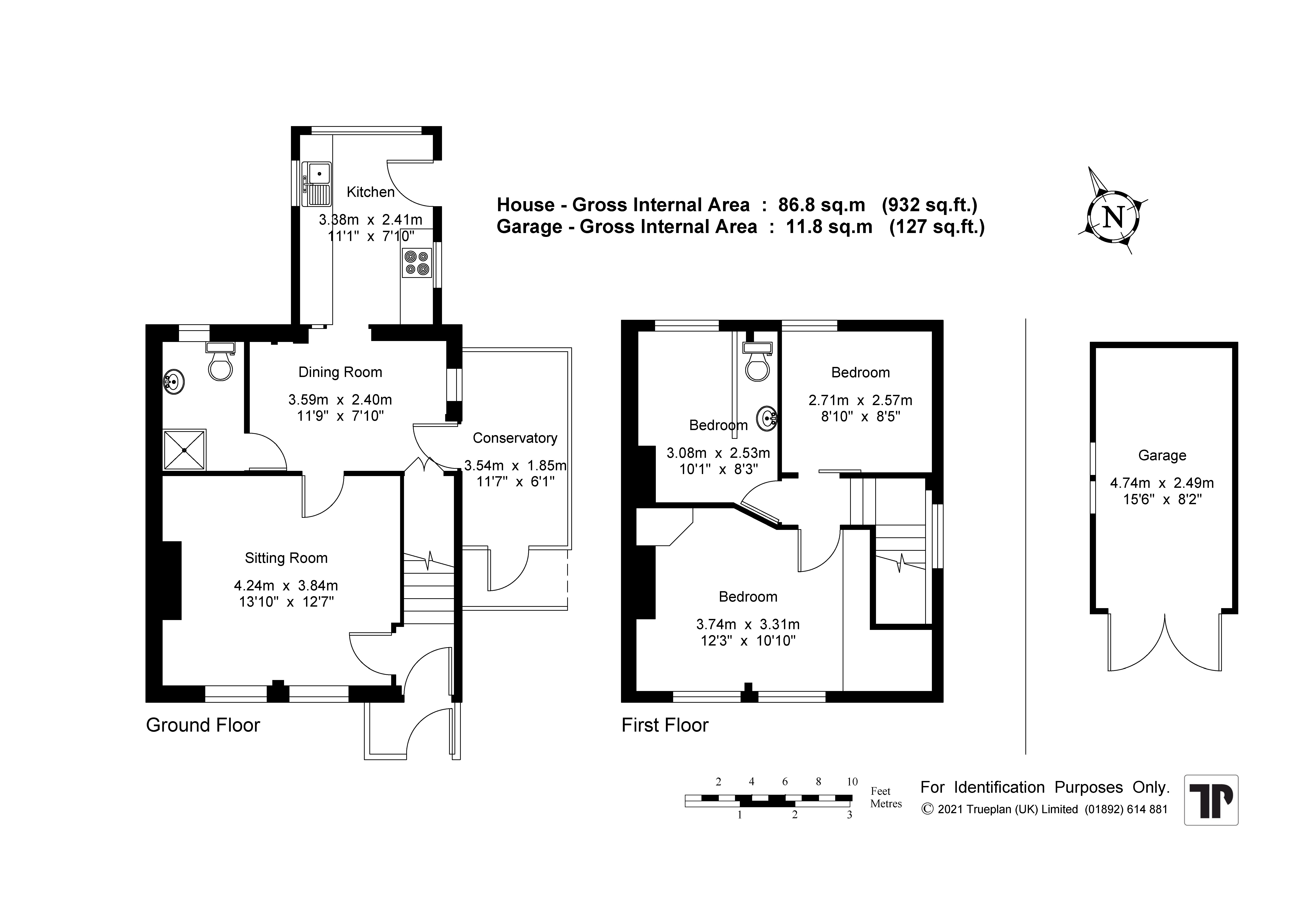
The internal accommodation (932.sq.ft) is arranged over two floors with three receptions on the ground floor, front facing sitting room, central dining room, a shower room, kitchen, conservatory, and on the first floor, three bedrooms and a cloakroom. The conservatory opens to a good sized side plot and has access to the garage and the rear gardens. The detached garage has a front drive to Mesne Way.
A rare opportunity to purchase a project in this historic and picturesque Kent village with riverside walks and views over surrounding countryside within the rolling hills of the Darent Valley.
Auctioneer's Comments This property is for sale by the Modern Method of Auction. Should you view, offer or bid on the property, your information will be shared with the Auctioneer, iamsold.
This method of auction requires both parties to complete the transaction within 56 days of the draft contract for sale being received by the buyers solicitor. This additional time allows buyers to proceed with mortgage finance (subject to lending criteria, affordability and survey).
The buyer is required to sign a reservation agreement and make payment of a non-refundable Reservation Fee. This being 4.2% of the purchase price including VAT, subject to a minimum of £6,000.00 including VAT. The Reservation Fee is paid in addition to purchase price and will be considered as part of the chargeable consideration for the property in the calculation for stamp duty liability.
Buyers will be required to go through an identification verification process with iamsold and provide proof of how the purchase would be funded.
This property has a Buyer Information Pack which is a collection of documents in relation to the property. The documents may not tell you everything you need to know about the property, so you are required to complete your own due diligence before bidding. A sample copy of the Reservation Agreement and terms and conditions are also contained within this pack.
The buyer will also make payment of £300.00 including VAT towards the preparation cost of the pack, where it has been provided by iamsold.
The property is subject to an undisclosed Reserve Price with both the Reserve Price and Starting Bid being subject to change.
Referral Arrangements The Partner Agent and Auctioneer may recommend the services of third parties to you. Whilst these services are recommended as it is believed they will be of benefit; you are under no obligation to use any of these services and you should always consider your options before services are accepted.
Where services are accepted the Auctioneer or Partner Agent may receive payment for the recommendation and you will be informed of any referral arrangement and payment prior to any services being taken by you.
Location The village of Shoreham sits beside the River Darent as it winds through the North Downs and is situated six miles north of Sevenoaks, in an Area of Outstanding Natural Beauty. Reputed to be the most bombed village in Britain, the famous great white cross, cut in the chalk hillside is a monument to commemorate the dead of the First World War. The fascinating Shoreham Aircraft Museum holds hundreds of aviation relics and has a charming tearoom and tea garden. The village has a primary school, recreation ground, several pubs serving food, an excellent village store and post office. Shoreham Village hosts lots of events throughout the year, including the famed 'Duck' Race, Village Fete, Garden Safari, Midsummer Festival and the Heavy Horse Show. The Mount in Shoreham is a boutique Vineyard producing award winning still and sparkling wines and holds regular wine tasting events. Darenth Valley Golf Course is located on the edge of the village. Shoreham railway station, which is 4 minute walk from front door of Little Copt, has trains on the Victoria line, Blackfriars, St Pancras, the line also goes direct to Sevenoaks in just 9 minutes, where there are a variety of trains into central London, taking approximately 40 minutes. There are normally 31 trains per day travelling from Shoreham (Kent) to London.
Directions From Clifton & Co Otford enter the roundabout and take the 3rd exit onto High Street, Otford. Travel west on High Street for 0.2 miles, continuing to Pilgrims Way West for a further 0.8 miles, then turn right into Twitton Lane. Travel for a further 0.2 miles until you turn right onto Filston Lane. Continue for a further 1.3 miles, then turn left onto Mesne Way.
Entrance Porch Double glazed porch.
Entrance Hall Double glazed door to front. Laminated flooring. Radiator. Stairs to landing.
Sitting Room 13'10" x 12'7" (4.22m x 3.84m). Double glazed window to front. Laminated flooring. Plain ceiling. Tiled fireplace. Radiator.
Dining Room 11'9" x 7'10" (3.58m x 2.4m). Double glazed window to side. Double glazed door to side. Papered ceiling. Radiator. Storage cupboard. Under stairs storage cupboard. Meter and fuse box cupboard.
Shower Room 7'9" x 4'7" (2.36m x 1.4m). Double glazed frosted window to rear. Wood effect flooring. Radiator. Shower cubicle. Low level wc. Wash hand basin.
Conservatory 11'7" x 6'1" (3.53m x 1.85m). Double glazed window to side. Double glazed window to side. Door to front.
Kitchen 11'1" x 7'10" (3.38m x 2.4m). Double glazed window to side. Double glazed window to rear. Double glazed door to side. Tiled flooring. Textured ceiling. Fitted wall and base units. Stainless steel sink and drainer unit with mixer taps. Local tiling. Space for washing machine. Space for fridge/freezer.
Landing Double glazed window to side. Carpet.
Bedroom 1 12'3" (3.73m) x 10'10" (3.3m) extending to 17'4" (5.28m) into wardrobe. Two double glazed window to front. Carpet. Papered ceiling. Radiator. Airing cupboard.
Bedroom 2 10'1" x 8'3" (3.07m x 2.51m). Double glazed window to rear. Carpet. Textured ceiling. Radiator. (currently incorporating a low level wc and wash hand basin).
Bedroom 3 8'10" x 8'5" (2.7m x 2.57m). Double glazed window to rear. Carpet. Plain ceiling. Radiator.
Garden The property sits in a generous 0.11 acre plot which is to the rear and side of the property and incorporates the detached garage and driveway.
Detached Garage 15'6" x 8'2" (4.72m x 2.5m).
Transport Information Shoreham Railway Station: 0.7 mile
Otford Railway Station: 2.1 miles
Knockholt Railway Station: 3.5 miles
There is a regular bus service S2 on Church Street: 2 minute walk
The distances calculated are as the crow flies.
Education Please check with the local authority as to catchment areas and intake criteria.
Useful Information We recognise that buying a property is a big commitment and therefore recommend that you visit the local authority websites for more helpful information about the property and local area before proceeding.
Council Tax We are informed this property is in council tax band D, you should verify this with Sevenoaks Borough Council.
Tenure The vendor advises us that this property is Freehold. Should you proceed with the purchase of the property your solicitor must verify these details.
Appliances/Services The mention of any appliances and/or services within these sales particulars does not imply that they are in full efficient working order.
Measurements All measurements are approximate and therefore may be subject to a small margin of error.
Viewing Strictly via Clifton & Co Otford
Ref OTF/CB/ST/211118 HAR210233/D1
Read lessImportant Information
Interested in this property?
If you are interested in this property why not arrange a viewing? Just send us your details and we'll be in touch to arrange it for you.
Value My Property