SOLD SUBJECT TO CONTRACT VIA CLIFTON & CO.
A charming and immaculately presented two double bedroom detached bungalow, set back from the road on a generous plot, with the potential to extend (STP). The property is neatly situated in a prime position close to the centre of Kemsing Village and is offered for sale chain free.
Location Kemsing is an historic Kent village that lies in an Area of Outstanding Natural Beauty close to the North Downs. There are a small number of shops in the village as well as a primary school, library and doctors surgery. The larger town of Sevenoaks is approximately four miles away and provides train services to London in under 30 minutes as well as a broad range of shops, restaurants and other services. There are good number of highly-rated schools, both state and private, in the Sevenoaks area.
Directions From our Clifton & Co office in Otford Village head east on High Street, take the first exit at the roundabout onto Station Road, turn right onto Pilgrims Way East. Turn right onto Childsbridge Lane, then turn left into West End.
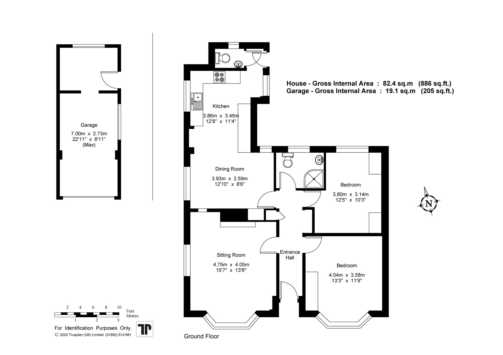
Front Off road parking on block paved drive. Decorative retaining walls with mature shrubbery. Detached garage to the side.
Hall Recessed solid wood door to front. Access to loft space. Storage cupboard.
Sitting Room Leaded bay window to front. Leaded window to side. Decorative fireplace and open chimney.
Dining Room Double aspect with leaded windows to side and rear. Wood style floor, space for fridge freezer. Open plan to kitchen.
Kitchen Windows to side and rear. Cottage style kitchen with light wood wall and base units with tiled work surfaces running above and inset ceramic sink. Four ring ceramic hob with extractor above and oven below. Integrated dish washer and washing machine. Wall mounted combination central heating boiler. Tiled floor.
Lobby Window to side. Door to garden.
Cloakroom Window to rear. Wash hand basin Low level WC
Bedroom One Leaded bay window to front. Bank of fitted wardrobes.
Bedroom Two Window to rear overlooking gardens. Fitted wardrobes with centre recess and storage above.
Bathroom Tiled walls. Pedestal wash hand basin. Close coupled WC. Corner shower cubicle.
Garden Sunny and secluded with an expanse of level lawn. Generous paved patio. Rear decked seating area. Detached summer house. Uninterrupted views up to the North Downs Way. Access to garage. Wrought iron gate to front.
Garage Detached, to the side of the property. Drive to the front. Light and power
Transport Information Otford Railway Station: 0.3 miles
Bat & Ball Railway Station: 1.3 miles
Kemsing Railway Station: 2.7 miles
The distances calculated are as the crow flies. For information regarding travel please visit: https://www.doogal.co.uk/MeasureDistances.php
Local Schools Primary Schools
Kemsing Primary School: 0.63 miles
Seal Church Of England School: 0.95 miles
Otford Primary School: 1.22 miles
Secondary Schools
Trinity: 1.26 miles
The Knole Academy: 1.85 miles
Wrotham School: 4.11 miles
Sen Schools
Knole Development Centre: 2.49 miles
West Heath School: 3.76 miles
Grange Park School: 4.09 miles
Information sourced from www.goodschoolsguide.co.uk/school-search
Please check with the local authority as to catchment areas and intake criteria.
Useful Information We recognise that buying a property is a big commitment and therefore recommend that you visit the local authority website www.sevenoaks.gov.uk and the following websites for more helpful information about the property and local area before proceeding.
Some information in these details is taken from third party sources. Should any of the information be critical in your decision making, then please contact Clifton & Co Otford for verification.
Council Tax We are informed this property is in council tax band D you should verify this with Sevenoaks Borough Council on 01732 227000.
Tenure The vendor advises us that this property is Freehold. Should you proceed with the purchase of the property your solicitor must verify these details.
Appliances / Services The mention of any appliances and/or services within these sales particulars does not imply that they are in full efficient working order.
Measurements All measurements are approximate and therefore may be subject to a small margin of error.
Opening Hours Monday to Saturday 9.00 am 6.00 pm
Viewing Strictly via Clifton & Co Otford Branch.
Read less