SOLD VIA CLIFTON & CO
This spacious two/three bedroom detached bungalow sits round a central green, on a larger than average plot allowing potential to extend STPP. Siding onto fields, the bungalow is located in an enviable position at the end of the road in this highly regarded village.
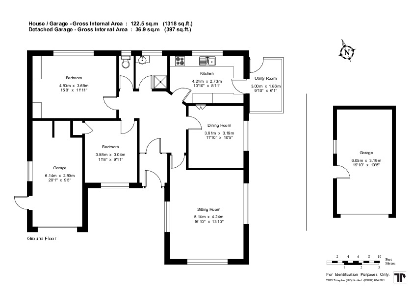
Built by renowned builders R.J Billings, the bungalow offers well proportioned versatile rooms with the scope to create even more accommodation. There are well stocked gardens to both front and rear with ample driveway parking leading to integral garage and large drive to side giving access to further garage.
Location Shorne is a picturesque village offering local shops, public houses, church and primary school. Adjacent to Shorne village there is Shorne Wood Country Park, an area of outstanding natural beauty designated a site of special scientific Interest for its wildlife value. The village is within easy reach of Gravesend and Medway town providing further excellent schooling. Convenient access to the M2 and M25 motorways linking to both Gatwick and Heathrow airports, London, Bluewater and the International railway station at Ebbsfleet offering a 17 minute link to London and the Channel Ports. The commuter is well served by a coach service running from the area to London, together with main line railway station at Sole Street and Higham on the Victoria and Cannon Street line respectively.
Directions From the A2 coast bound take the Shorne/Cobham exit. At the T junction turn right onto Brewers Road. Follow the road along turning left onto Woodlands Lane, at the junction turn left onto Tanyard Hill. At the bottom of the hill turn right onto Swillers Lane and first right into Warren View follow the green round to the left where the property will be found on the left hand side overlooking the fields.
Transport Information Longfield Railway Station: 8.6 miles
Ebbsfleet International Eurostar Station: 7.7 miles
The distances calculated are as the crow flies.
Education Please check with the local authority as to catchment areas and intake criteria.
Useful Information We recognise that buying a property is a big commitment and therefore recommend that you visit the local authority websites for more helpful information about the property and local area before proceeding.
Council Tax We are informed this property is in council tax band E, you should verify this with Gravesham Borough Council.
Tenure The vendor advises us that this property is Freehold. Should you proceed with the purchase of the property your solicitor must verify these details.
Appliances/Services The mention of any appliances and/or services within these sales particulars does not imply that they are in full efficient working order.
Measurements All measurements are approximate and therefore may be subject to a small margin of error.
Viewing Strictly via Clifton & Co Hartley on 01474 700101.
Ref HA/SD/SK/300123 HAR220273.
Read less