HOLDING DEPOSIT TAKEN.
Available for single occupancy is this one bedroom apartment on the top floor in a well maintained purpose built block. Comprising an open plan sitting room/dining/kitchen, double bedroom and shower room. This flat is ideal for easy access to the Elizabeth line. Available unfurnished.
Location Belvedere was originally part of the estate of Sir Culling Eardley who constructed a large, wooden tower on the Heath as a viewpoint across the river giving the area the name. The area known as Nuxley Village quickly grew up around All Saints Church and the Villa houses constructed by Eardley. Belvedere offers many facilities including local shops, supermarket, restaurants, public houses and library. Belvedere also has a mainline railway station with regular services to London Bridge, Charing Cross and Cannon Street via Woolwich and Greenwich or Lewisham, enabling easy connection to the Docklands Light Railway.. Road links from the area give access to A2/M2, A20/M20, M25 and Dartford Tunnel as well as the Bluewater Shopping Complex and Ebbsfleet International station. The area offers a pleasing variety of property with substantial building taking place in the area in the Victorian era and the 1930's.
Communal Entrance Hall Entry phone system. Stairs to all floors.
Entrance Hall Door leading to hall. Fitted carpet. Entry phone system. Storage cupboard. Doors to sitting room and bedroom, sliding door to shower room.
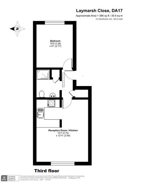
Sitting Room/Dining/Kitchen 15'7" x 12'11" (4.75m x 3.94m). Double glazed window to rear. Carpet. Wall mounted storage heater. Open plan to kitchen.
KITCHEN AREA
Vinyl flooring. Range of fitted wall and base units with work surfaces over. Freestanding cooker with extractor over. Space for fridge/freezer. Space and plumbing for washing machine. Stainless steel sink and drainer unit with mixer tap. Local tiling to walls.
Bedroom 10'9" x 9'1" (3.28m x 2.77m). Double glazed window to front. Carpet. Wall mounted storage heater.
Shower Room 7'11" max x 5'10" (2.41m max x 1.78m). Vinyl flooring. Extractor fan. Shower cubicle. Vanity wash hand basin. W.C with hidden cistern. Part tiled walls. Cupboard housing hot and cold water tanks.
Communal Grounds Laid to lawn.
Parking Allocated parking space.
Transport Information Train Stations:
Belvedere 0.5 miles
Abbey Wood 0.8 miles
Erith 1.6 miles
The property is also within easy reach of Ebbsfleet Eurostar International Station.
The distances calculated are as the crow flies.
Local Schools Primary Schools:
Northwood Primary School 0.1 miles
St Augustine of Canterbury CofE Primary School 0.2 miles
Parkway Primary School 0.3 miles
St John Fisher Catholic Primary School 0.4 miles
Harris Garrard Academy 0.5 miles
Secondary Schools:
Cornerstone School 0.7 miles
Horizons Academy Bexley 0.8 miles
Break Through School 0.8 miles
Trinity Church of England School 1 mile
Information sourced from Rightmove (findaschool). Please check with the local authority as to catchment areas and intake criteria.
Useful Information We recognise that buying a property is a big commitment and therefore recommend that you visit the local authority websites for more helpful information about the property and local area before proceeding.
Some information in these details are taken from third party sources. Should any of the information be critical in your decision making then please contact Clifton & Co for verification.
Council Tax We are informed this property is in band A. For confirmation please contact London Borough of Bexley.
Measurements All measurements are approximate and therefore may be subject to a small margin of error.
Reservation Fee To reserve a property a holding deposit must be paid of one week's rent. It is a condition that once the holding reservation fee has been paid, it will be deducted from the first month's rent upon the moving in day.
The reservation fee is not refundable for the following reasons:
If at any time you decided not to proceed with the application after the reservation fee has been paid.
Provide us with false, misleading or incorrect information as part of your tenancy application.
Unsatisfactory credit check(s) or reference(s).
Failure of any of the checks which the Landlord is required to undertake under the Immigration Act 2014.
All tenants will be required to be referenced. If you should have any concerns regarding any of the above points you need to inform us prior to agreeing a reservation fee and commencing referencing.
Payments Payments must be made by bank transfer. Please note card payments, cash or cheques will not be accepted in any circumstances.
Utility Bills The rent payable is exclusive of any other charge for living at the property. All other utility payments such as council tax, gas, electricity, water, telephone, broadband, cable, TV licence etc are the responsibility of the tenant and payable to the provider. Arrangements should be made to have the utilities connected in the tenant's name immediately upon moving in, if not before.
Rent & Security Deposit Tenants will be required to pay one month's rent in advance at the start of the tenancy and also a security deposit equal to five weeks rent.
Professional Memberships Clifton & Co is a member of The Client Money Protection Scheme (CMP) and The Property Ombudsman.
Viewings Monday to Friday 9.00 am 6.30 pm
Saturday 9.00 am 6.00 pm
Viewing via Clifton & Co Dartford office.
Ref DA/SP/DH/250318 - DAR240095/D2
Read less